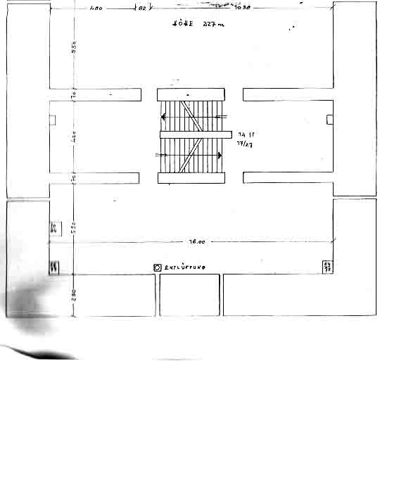
Truppenmannschaftsbunker 1500 "Trotz" Ebertstraße


Der Bunker wurde nicht 1940 gebaut, sondern erst ab 1943, da er auf dem Standort eines erst Anfang 1941 durch Bombenwirkung größtenteils zerstörten Kasernengebäudes (Stadtkaserne) steht.
Der Zustand des Bunkers kann im Jahr 2012 als (dem Alter entsprechend) -gut-
bezeichnet werden.





Der Umbau des Bunkers ist zeitweise in Planung gewesen.
Weitere Informationen auf:
Stand: 2012
Zurück zum Artikelinhaltsverzeichnis
Diese Seite ist Bestandteil der Präsenz